
Jak obliczyć spadek dachu? Praktyczny poradnik krok po kroku
Oblicz spadek dachu precyzyjnie z naszym kalkulatorem. Dowiedz się, jak mierzyć, interpretować wyniki i unikać błędów. Profesjonalne wskazówki dla każdego budowniczego.

Oblicz spadek dachu precyzyjnie z naszym kalkulatorem. Dowiedz się, jak mierzyć, interpretować wyniki i unikać błędów. Profesjonalne wskazówki dla każdego budowniczego.

Poznaj zalety pustaka ceramicznego 25 cm w budownictwie. Dowiedz się o wymiarach, zastosowaniu i wpływie na energooszczędność. Sprawdź, dlaczego warto wybrać pustaki ceramiczne Porotherm 25 cm.

Dowiedz się, jak precyzyjnie obliczyć kąt nachylenia dachu od 10 do 40 stopni. Praktyczne wskazówki, metody pomiaru i wpływ na funkcjonalność budynku. Poznaj optymalne rozwiązania!

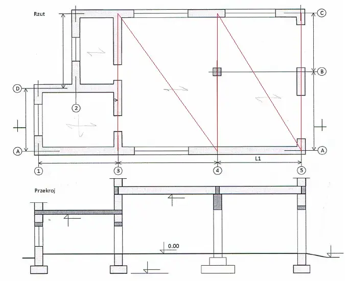
Chcesz samodzielnie zrobić podciąg stropu? Poznaj szczegółowe instrukcje montażu, listę niezbędnych materiałów oraz wskazówki ekspertów. Dowiedz się, jak uniknąć kosztownych błędów podczas wykonania.

Poznaj dokładną liczbę stempli na m2 stropu dla każdego typu konstrukcji. Sprawdzone wzory na rozstaw podpór w stropach Teriva, Vector i monolitycznych. Praktyczne wskazówki i zalecenia.

Poznaj sprawdzone techniki montażu rynny do deski czołowej. Dowiedz się, jak prawidłowo zainstalować system rynnowy, w tym odpływ do rynny. Profesjonalne porady dla skutecznego odprowadzania wody.

Zastanawiasz się ile warstw pustaków do stropu będziesz potrzebować? Poznaj dokładne wymiary, zasady montażu i czynniki wpływające na grubość stropu gęstożebrowego. Sprawdzone wskazówki!

Dowiedz się, co to jest piorunochron i jak chroni budynki przed wyładowaniami atmosferycznymi. Poznaj zasady działania, rodzaje i znaczenie regularnych przeglądów instalacji odgromowej.

Dowiedz się, ile kosztuje zmiana stropu w projekcie budowlanym. Poznaj dokładne ceny dla różnych typów stropów, koszty materiałów i robocizny oraz niezbędne dokumenty. Oszczędzaj już na etapie planowania.

Dowiedz się ile ciepła ucieka przez strop w Twoim domu i poznaj sprawdzone metody izolacji. Oblicz straty ciepła, koszty ogrzewania i wybierz najlepsze rozwiązania termoizolacyjne.